Call us

(613) 804-9999

Free estimation

Click here

EAST SIDE - 67 SPRINGHURST AVENUE

Ottawa, Ontario K1S0E2

$825,000 for sale



MLS®:
X12716626
Contract Days:
1
Community:
Ownership:
Property Type:
R3P (N4B)
Total Size:
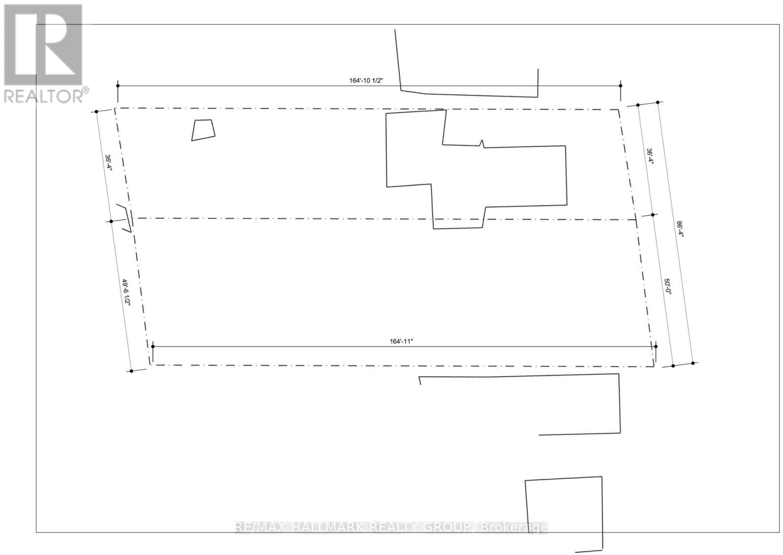
36.4 x 164.9 FT
Built Date:
Parking:
Bedrooms:
+
Bathrooms:
Interior Features

Construction Style:
Total Stories:
Total Bedrooms:
Bedrooms Above Ground:
Bedrooms Below Ground:
Total Bathrooms:
Whole Bathrooms:
0
Half Bathrooms:
Basement Type:
Basement Development:
Appliances:
Exterior Features

Built Date:
Exterior Finish:
Foundation Type:
Utitilies

Heating Type:
Heating Fuel:
Cooling Type:
Utility Water:
Municipal water
Sewer:
Sanitary sewer
Total Fireplaces:
Type
Level
Size

Note

Exceptional development opportunity for builders and investors. This prime lot offers outstanding potential for a single-family residence or multi-unit development. HST/GST is included, and a credit toward a building permit is available due to the presence of an existing residential dwelling. All municipal services are at the street (currently disconnected), and the home is ready for teardown. Ideally located within walking distance to the Rideau River, Rideau Canal, and scenic recreational pathways, the property provides excellent access to outdoor amenities and nearby conveniences. Current zoning permits a broad range of development options, including single-family homes, bungalows, townhomes, duplexes, or triplexes. The generous lot size supports the possibility of multiple units, with a minor variance potentially enhancing development capacity further. Situated on a paved road, the site includes an existing structure that may offer development charge savings. The seller may consider assisting with financing and development applications for a strong offer supported by a clear and well-defined development plan. (id:19004)

Disclaimer



This REALTOR.ca listing content is owned and licensed by REALTOR® members of The Canadian Real Estate Association.