联系我们

(613) 804-9999

免费评估

点击这里

2819 LANARK 8C CONCESSION

Lanark Highlands, Ontario K0A1P0

$623,000 for 出售



MLS®:
X12803146
上市天数:
1
社区:
产权:
Freehold
类型:
House , Detached
占地:
399 x 319 FT|2 - 4.99 acres
建造日期:
停车位:
10
卧室:
4+
洗手间:
2
内部特征

建造风格:
Detached
楼层:
1
卧室总数:
4
地上卧室:
4
地下卧室:
浴室总数:
2
完整浴室:
2
半浴室:
地下室:
N/A (Partially finished), N/A
地下室装修:
Partially finished
包含电器:
Central Vacuum, Dishwasher, Dryer, Stove, Washer
外部特征

建造日期:
外部完成:
Vinyl siding
地基类型:
Poured Concrete
公共设施

供暖类型:
Forced air
供暖燃料:
Electric
制冷类型:
None
饮水供应:
Drilled Well
污水处理:
Septic System
壁炉总数:
3
类型
楼层
尺寸
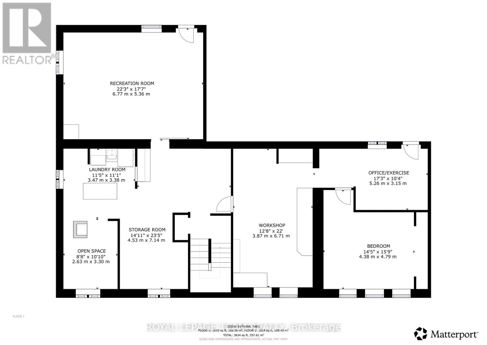
Other
Lower level
4.53 m x 7.14 m
Workshop
Lower level
3.87 m x 6.71 m
Office
Lower level
5.26 m x 3.15 m
Bedroom
Lower level
4.38 m x 4.79 m
Recreational, Games room
Lower level
6.77 m x 5.36 m
Laundry room
Lower level
3.47 m x 3.38 m
Other
Lower level
2.53 m x 3.3 m
Primary Bedroom
Main level
7.1 m x 5.44 m
Other
Main level
2.27 m x 3.42 m
Bedroom
Main level
3.26 m x 3.04 m
Bedroom
Main level
2.85 m x 3.74 m
Bathroom
Main level
3.45 m x 3.51 m
Bathroom
Main level
1.47 m x 2.34 m
Kitchen
Main level
5.42 m x 3.51 m
Dining room
Main level
5.02 m x 3.42 m
Living room
Main level
5.4 m x 7.13 m

备注

Unique property nestled on approximately 3 acres of Lanark wilderness. Located on a quiet dead-end road, this 3+1 bedroom, 2 bathroom oasis offers remote privacy while remaining less than an hour's commute from the city. This carpet-free home features a vaulted living room ceiling and a spacious primary bedroom with a large walk-in closet. The renovated ensuite includes a deep jetted tub, dual sinks, and a custom shower. Outside, the detached garage provides ample storage for vehicles and equipment, while the yard and small barn have historically hosted gardens and smaller animals. The basement offers significant versatility, featuring two walk-out doors, a cozy wood stove, a workshop, a large recreation room wired for a projector, and a freshly renovated bedroom. With its separate entrance, this level could easily be converted into a secondary suite. Notable features include- Shingles replaced in 2024- Central vacuum system- Two fireplaces (one electric, one propane)- Private deck off the primary bedroom- Raised garden beds (id:19004)

声明



This REALTOR.ca listing content is owned and licensed by REALTOR® members of The Canadian Real Estate Association.