联系我们

(613) 804-9999

免费评估

点击这里

1718 COUNTY 18 ROAD

North Grenville, Ontario K0G1S0

$999,000 for 出售



MLS®:
X12991904
上市天数:
1
社区:
产权:
Freehold
类型:
House , Detached
占地:
118.6 x 524.9 FT
建造日期:
停车位:
5
卧室:
3+
洗手间:
3
内部特征

建造风格:
Detached
楼层:
1
卧室总数:
3
地上卧室:
3
地下卧室:
浴室总数:
3
完整浴室:
2
半浴室:
1
地下室:
Full
地下室装修:
包含电器:
外部特征

建造日期:
外部完成:
Vinyl siding
地基类型:
Poured Concrete
公共设施

供暖类型:
Forced air
供暖燃料:
Propane
制冷类型:
Central air conditioning, Air exchanger
饮水供应:
Drilled Well
污水处理:
Septic System
壁炉总数:
类型
楼层
尺寸
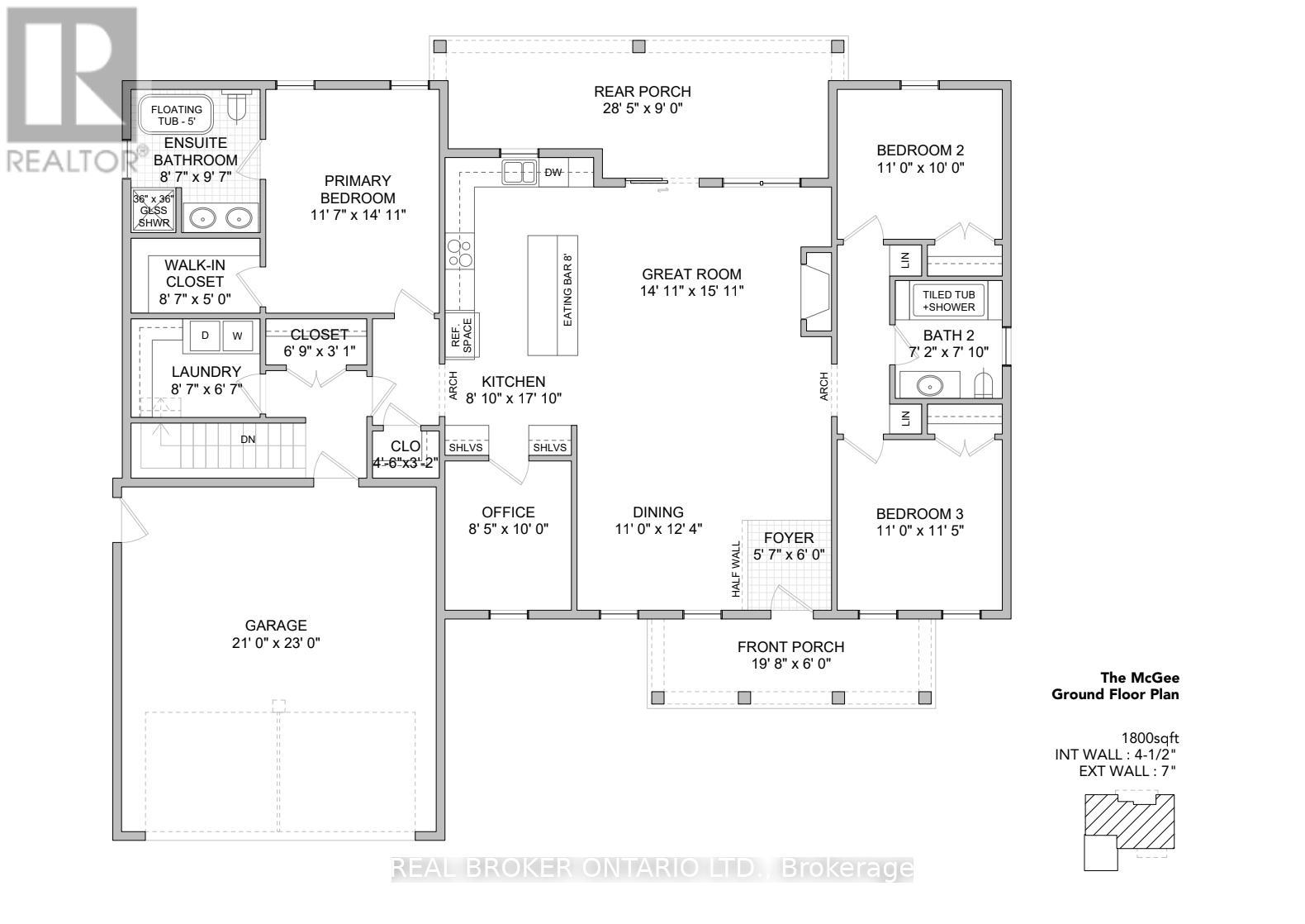
Primary Bedroom
Main level
3.53 m x 4.55 m
Bathroom
Main level
2.18 m x 2.39 m
Bathroom
Main level
2.62 m x 2.92 m
Laundry room
Main level
2.62 m x 2.01 m
Kitchen
Main level
2.69 m x 5.44 m
Office
Main level
2.57 m x 3.05 m
Dining room
Main level
3.35 m x 3.76 m
Foyer
Main level
1.7 m x 1.83 m
Living room
Main level
4.55 m x 4.85 m
Bedroom 2
Main level
3.35 m x 3.05 m
Bedroom 3
Main level
3.35 m x 3.48 m

备注

Welcome to The McGee, a stunning new build by ArchStone Homes, set along the banks of Kemptville Creek.This beautifully designed bungalow delivers the best of main-floor living, with an open-concept layout that connects the great room, dining area, and chef-inspired kitchen in one effortless flow. Step out to an expansive rear porch and take in your private waterfront backdrop, the kind of setting that makes every day feel like a getaway.The primary suite is a true retreat, featuring a walk-in closet and a spa-inspired ensuite with a glass shower. Two additional bedrooms offer flexibility for family, guests, or a home office, while a dedicated office space and main-floor laundry keep daily life organized and convenient.The modern farmhouse exterior makes a lasting first impression, and the attached garage and generous driveway offer all the practicality you'd expect from a well-thought-out build. The full walk-out basement is a blank canvas, ready for future living space, a home gym, or an in-law suite. With direct frontage on Kemptville Creek and a deep, private lot, this is a rare chance to own a brand-new home where nature is part of your everyday life, without sacrificing proximity to all Kemptville has to offer. (id:19004)

声明



This REALTOR.ca listing content is owned and licensed by REALTOR® members of The Canadian Real Estate Association.